Ampia Casa a Schiera nel Cuore di Cesena con Corte Privata – 4 Camere e Mansarda

Ampia Casa a Schiera nel Cuore di Cesena con Corte Privata – 4 Camere e Mansarda

Descrizione

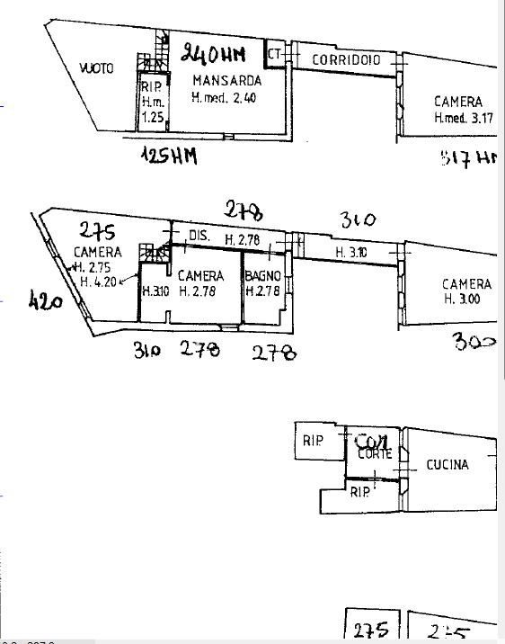
Nel pieno centro urbano di Cesena, a pochi passi dalla suggestiva Piazza del Popolo, proponiamo in vendita una splendida porzione centrale di casa a schiera ideale per chi desidera vivere la città senza rinunciare alla tranquillità. L’immobile, distribuito su tre livelli per un totale di circa 290 mq, si distingue per spazi generosi e funzionali, perfetti per una famiglia numerosa o per chi cerca ambienti versatili e luminosi.

Al piano terra troviamo una comoda cucina abitabile con affaccio diretto sulla corte privata interna, ideale per momenti di relax all’aperto o per cene conviviali. Sempre al piano terra sono presenti due pratici ripostigli.

Al primo piano si sviluppa la zona notte con tre camere da letto di ampie dimensioni , un bagno finestrato e corridoio di distribuzione. Le camere, ben disposte e luminose, offrono comfort e privacy a tutta la famiglia.

Il piano mansardato, con altezza media di 2,40 m, ospita un’ulteriore camera e locali accessori, perfetti come studio, sala hobby o zona ospiti oppure 2 letto. La presenza di più ripostigli su ogni livello garantisce ordine e praticità.

La posizione centrale permette di raggiungere tutti i servizi, negozi, scuole e trasporti pubblici a piedi, rendendo questa soluzione ideale per chi ama la vita cittadina ma cerca un’abitazione riservata e silenziosa.

Non perdere l’occasione di vivere nel cuore di Cesena in una casa unica per spazi e posizione! Per informazioni e visite: Mirko 3339797979. Contatta subito la nostra agenzia per scoprire tutti i dettagli e prenotare una visita.

Camere
3
Mq
290
freccia_indicatore
0.00 kWh/m2 anno

Ambienti

Soggiorno
Soggiorno angolo cottura
Cucina
Ripostigli 1
Mansarda
Soffitta
Taverna
Giardino
Cantina
Lavanderia

Livelli & comfort

Livelli Piano intermedio , Piano interrato , Piano rialzato , Piano terra , Primo piano
Aria condizionata
Riscaldamento autonomo

Contattaci